وصف المنتج
التطبيق
تُستخدم وحدة مناولة الهواء المركزية (AHU) من مصنع KeRuiTe، ذات حجم هواء يتراوح من5,000 m³/h to 200,000 m³/h، على نطاق واسع في:
- الفنادق
- الصالات الرياضية
- مراكز المعارض
- مباني المكاتب
- مترو الأنفاق
- المطارات
- مشاريع أنظمة تكييف الهواء العامة الأخرى
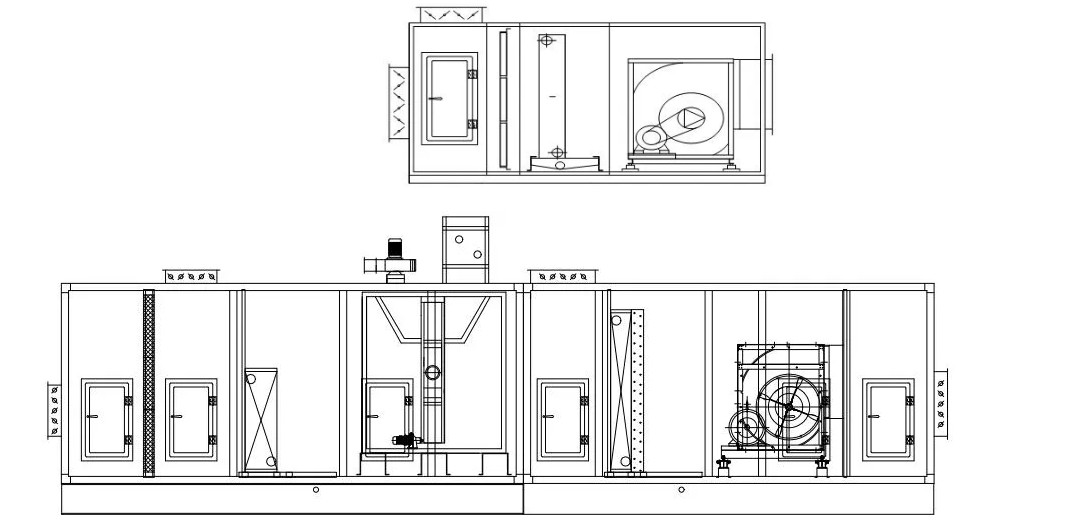
الصور التخطيطية


المعلمات الفنية
| الموديل | الموديل | حجم الهواء المقنن (م³/س) | الطول (mm) | العرض | الارتفاع | قسم خلط الهواء النقي/الراجع ومخرج الهواء | قسم المرشح اللوحي | مرشح كيسي | قسم المرشح المطوي | قسم التحكم في توزيع الهواء | ملف التبريد 1R–6R | ملف التبريد 8R–12R | قسم التدفئة بالبخار & الماء الساخن | قسم الترطيب | القسم الأوسط |
|---|
| ZK2.5 | 09 06 | 2500 | 600 | 100 | 500 | 400 | 1200 | 600 | 800 | 300 | 600 | 600 | 900 | 900(200) | 1100(225) |
| ZK04 | 12 06 | 4000 | 600 | 100 | 500 | 400 | 1200 | 600 | 800 | 300 | 600 | 600 | 900 | 1100(225) | 1100(250) |
| ZK04 | 09 09 | 4000 | 600 | 100 | 500 | 400 | 1200 | 600 | 800 | 300 | 600 | 600 | 900 | 1100(250) | 1200(280) |
| ZK06 | 12 09 | 6000 | 600 | 100 | 500 | 400 | 1200 | 600 | 800 | 300 | 600 | 600 | 900 | 900(280) | 900(315) |
| ZK08 | 15 09 | 8000 | 600 | 100 | 500 | 400 | 1200 | 600 | 800 | 300 | 600 | 600 | 900 | 900(315) | 900(355) |
| ZK09 | 12 12 | 9000 | 600 | 100 | 500 | 400 | 1200 | 600 | 800 | 300 | 600 | 600 | 900 | 900(315) | 1400(355) |
| ZK12 | 15 12 | 12000 | 600 | 100 | 500 | 400 | 1200 | 600 | 800 | 300 | 600 | 600 | 900 | 900(355) | 1000(400) |
| ZK15 | 18 12 | 15000 | 800 | 100 | 500 | 400 | 1200 | 600 | 800 | 300 | 600 | 600 | 900 | 1000(400) | 1100(450) |
| ZK17 | 21 12 | 17000 | 800 | 100 | 500 | 400 | 1200 | 600 | 800 | 300 | 600 | 600 | 900 | 1100(450) | 1200(500) |
| ZK15 | 15 15 | 15000 | 800 | 100 | 500 | 400 | 1200 | 600 | 800 | 300 | 600 | 600 | 900 | 1700(450) | 1800(500) |
| ZK19 | 18 15 | 19000 | 800 | 100 | 500 | 400 | 1200 | 600 | 800 | 300 | 600 | 600 | 900 | 1200(500) | 2000(560) |
| ZK22 | 21 15 | 22000 | 800 | 100 | 500 | 400 | 1200 | 600 | 800 | 300 | 600 | 600 | 900 | 1200(500) | 1300(560) |
| ZK26 | 24 15 | 26000 | 800 | 100 | 500 | 400 | 1200 | 600 | 800 | 300 | 600 | 600 | 900 | 1300(560) | 1500(630) |
| ZK25 | 19 19 | 25000 | 800 | 100 | 500 | 400 | 1200 | 800 | 900 | 300 | 600 | 600 | 900 | 1300(560) | 2300(630) |
| ZK28 | 21 19 | 28000 | 800 | 100 | 500 | 400 | 1200 | 800 | 900 | 300 | 600 | 600 | 900 | 2300(630) | 2400(710) |
| ZK32 | 24 19 | 32000 | 800 | 100 | 500 | 400 | 1200 | 800 | 900 | 300 | 600 | 600 | 900 | 1500(630) | 1700(710) |
| ZK37 | 27 19 | 37000 | 800 | 100 | 500 | 400 | 1200 | 800 | 900 | 300 | 600 | 600 | 900 | 1700(710) | 1800(800) |
| ZK35 | 22 22 | 35000 | 1000 | 100 | 500 | 400 | 1500 | 800 | 900 | 300 | 600 | 600 | 900 | 2400(710) | 2600(800) |
| ZK38 | 24 22 | 38000 | 1000 | 100 | 500 | 400 | 1500 | 800 | 900 | 300 | 600 | 600 | 900 | 1700(710) | 2600(800) |
| ZK44 | 27 22 | 44000 | 1000 | 100 | 500 | 400 | 1500 | 800 | 900 | 300 | 600 | 600 | 900 | 1800(800) | 2100(900) |
| ZK49 | 30 22 | 49000 | 1000 | 100 | 500 | 400 | 1500 | 800 | 900 | 300 | 600 | 600 | 900 | 1800(800) | 2100(900) |
| ZK45 | 25 25 | 45000 | 1000 | 100 | 500 | 400 | 1500 | 800 | 900 | 300 | 600 | 600 | 900 | 1800(800) | 2700(900) |
| ZK50 | 27 25 | 50000 | 1000 | 100 | 500 | 400 | 1500 | 800 | 900 | 300 | 600 | 600 | 900 | 1800(800) | 2100(800) |
| ZK55 | 30 25 | 55000 | 1000 | 100 | 500 | 400 | 1500 | 800 | 900 | 300 | 600 | 600 | 900 | 2100(900) | 2200(1000) |
| ZK60 | 33 25 | 60000 | 1000 | 100 | 500 | 400 | 1500 | 800 | 900 | 300 | 600 | 600 | 900 | 2100(900) | 2200(1000) |
| ZK67 | 36 25 | 67000 | 1200 | 100 | 500 | 400 | 1500 | 800 | 900 | 300 | 600 | 600 | 900 | 2100(900) | 2200(1000) |
| ZK77 | 36 28 | 77000 | 1200 | 100 | 500 | 400 | 1500 | 800 | 900 | 300 | 600 | 600 | 900 | 2400(800×2) | — |
| ZK85 | 39 28 | 85000 | 1200 | 100 | 500 | 400 | 1500 | 800 | 900 | 300 | 600 | 600 | 900 | 2400(800×2) | — |
| ZK105 | 45 30 | 105000 | 1200 | 100 | 500 | 400 | 1500 | 1000 | 1200 | 600 | 600 | 600 | 900 | 2400(800×2) | — |
| ZK110 | 48 30 | 110000 | 1200 | 100 | 500 | 400 | 1500 | 1000 | 1200 | 600 | 600 | 600 | 900 | 2700(900×2) | — |
| ZK115 | 45 33 | 115000 | 1200 | 100 | 500 | 400 | 1800 | 1000 | 1200 | 600 | 600 | 600 | 900 | 2700(900×2) | — |
| ZK125 | 48 33 | 125000 | 1200 | 100 | 500 | 400 | 1800 | 1000 | 1200 | 600 | 600 | 600 | 900 | 3000(1000×2) | — |
| ZK120 | 45 35 | 120000 | 1200 | 100 | 500 | 400 | 1800 | 1000 | 1200 | 600 | 600 | 600 | 900 | 3000(1000×2) | — |
| ZK130 | 48 35 | 130000 | 1200 | 100 | 500 | 400 | 1800 | 1000 | 1200 | 600 | 600 | 600 | 900 | 3000(1000×2) | — |
| ZK140 | 51 35 | 140000 | 1200 | 100 | 500 | 400 | 1800 | 1000 | 1200 | 600 | 600 | 600 | 900 | 3000(1000×2) | — |
| ZK150 | 54 35 | 150000 | 1200 | 100 | 500 | 400 | 1800 | 1000 | 1200 | 600 | 600 | 600 | 900 | 3000(1000×2) | — |
| ZK160 | 57 36 | 160000 | 1200 | 100 | 500 | 400 | 1800 | 1000 | 1200 | 600 | 600 | 600 | 900 | 3550(1120×2) | — |
| ZK170 | 60 36 | 170000 | 1200 | 100 | 500 | 400 | 1800 | 1000 | 1200 | 600 | 600 | 600 | 900 | 3750(1250×2) | — |
ملاحظات
- يُحدد طول الأقسام الوظيفية مثل قسم استرداد الحرارة وقسم إزالة الرطوبة وفقًا لظروف التشغيل الفعلية. قسم الكربون النشط: الطول القياسي 900 mm.
- أبعاد قسم الخلط وقسم مخرج الهواء قياسية. يجب تأكيد المقاسات والمواضع المخصصة لكل حالة على حدة.
- يجب تعديل طول قسم الترطيب وفقًا للمتطلبات المحددة ونوع المرطب.
- إذا تم تركيب مرطب بوسادة سليلوز بعد المكثف، فلا يلزم قسم وظيفي إضافي. وإذا تم تركيبه بشكل مستقل، فستلزم مساحة بستة أوضاع.
- يجب إضافة قسم أوسط قبل قسم الفلتر وملف التبريد وقسم التسخين وقسم كاتم الصوت لتسهيل الصيانة.
البيانات الواردة في هذا الجدول هي للإشارة فقط. قد يختلف التصميم الفعلي. بالنسبة للمتطلبات الخاصة، يرجى الاتصال بـ HuiKai.
الميزات
الوحدة مجهزة بمراوح محلية أو مستوردة عالية الجودة، تتميز بكفاءة عالية وضوضاء منخفضة ومظهر جذاب.
المحركات من علامات تجارية محلية معروفة بعمر خدمة طويل واستهلاك منخفض للطاقة. المحامل من معيار NSK.
هيكل معياري قابل للفك لسهولة التركيب والنقل والتجميع في الموقع.
توفر الألواح المرشوشة برغوة البولي يوريثان عزلًا حراريًا ممتازًا ومقاومة للتآكل ومظهرًا جماليًا.
يمكن تصنيع صينية المكثفات من الفولاذ المجلفن أو الفولاذ المقاوم للصدأ بناءً على احتياجات العميل، مما يمنع بفعالية تسرب المكثفات والتآكل.
يتوافق تصميم الوحدة وتصنيعها وفحصها مع:
GB/T 14294‑1993 وحدات تكييف الهواء المجمعة
GB 10891‑1989 متطلبات السلامة لوحدات مناولة الهواء
تصميم معياري بمعامل 100 mm. يمكن تحديد الأبعاد الكلية بالمعامل، مما يتيح تحديد الأبعاد بسرعة ودقة لمختلف الطرازات.