Последние новости
Сообщение



Данные в этой таблице приведены только для справки. Фактическая конструкция может отличаться. При наличии особых требований свяжитесь с HuiKai.
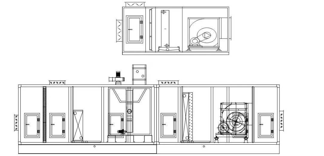
Особенности Установка оснащена высококачественными отечественными или импортными вентиляторами, отличающимися высокой эффективностью, низким уровнем шума и привлекательным внешним видом. Двигатели — известных отечественных брендов, с длительным сроком службы и низким энергопотреблением. Подшипники соответствуют стандарту NSK. Разборная модульная конструкция для удобства монтажа, транспортировки и сборки на месте. Панели с напылением пенополиуретана обеспечивают отличную теплоизоляцию, коррозионную стойкость и эстетичный внешний вид. Поддон для конденсата может быть изготовлен из оцинкованной стали или нержавеющей стали в зависимости от потребностей заказчика, что эффективно предотвращает утечку конденсата и коррозию. Проектирование, производство и контроль установки соответствуют: GB/T 14294‑1993 Комбинированные кондиционерные установки GB 10891‑1989 Требования безопасности к установкам обработки воздуха Модульная конструкция с модулем 100 mm. Общие размеры могут определяться по модулю, что позволяет быстро и точно задавать размеры для различных моделей.
Оставьте сообщение
Если вас интересует наша продукция и вы хотите узнать больше подробностей, пожалуйста, оставьте здесь сообщение, и мы ответим вам как можно скорее.